Wood Wharf
14 Charter Street
2008
Canary Wharf, London
Flagship Office Tower
Unbuilt with Kohn Pedersen Fox



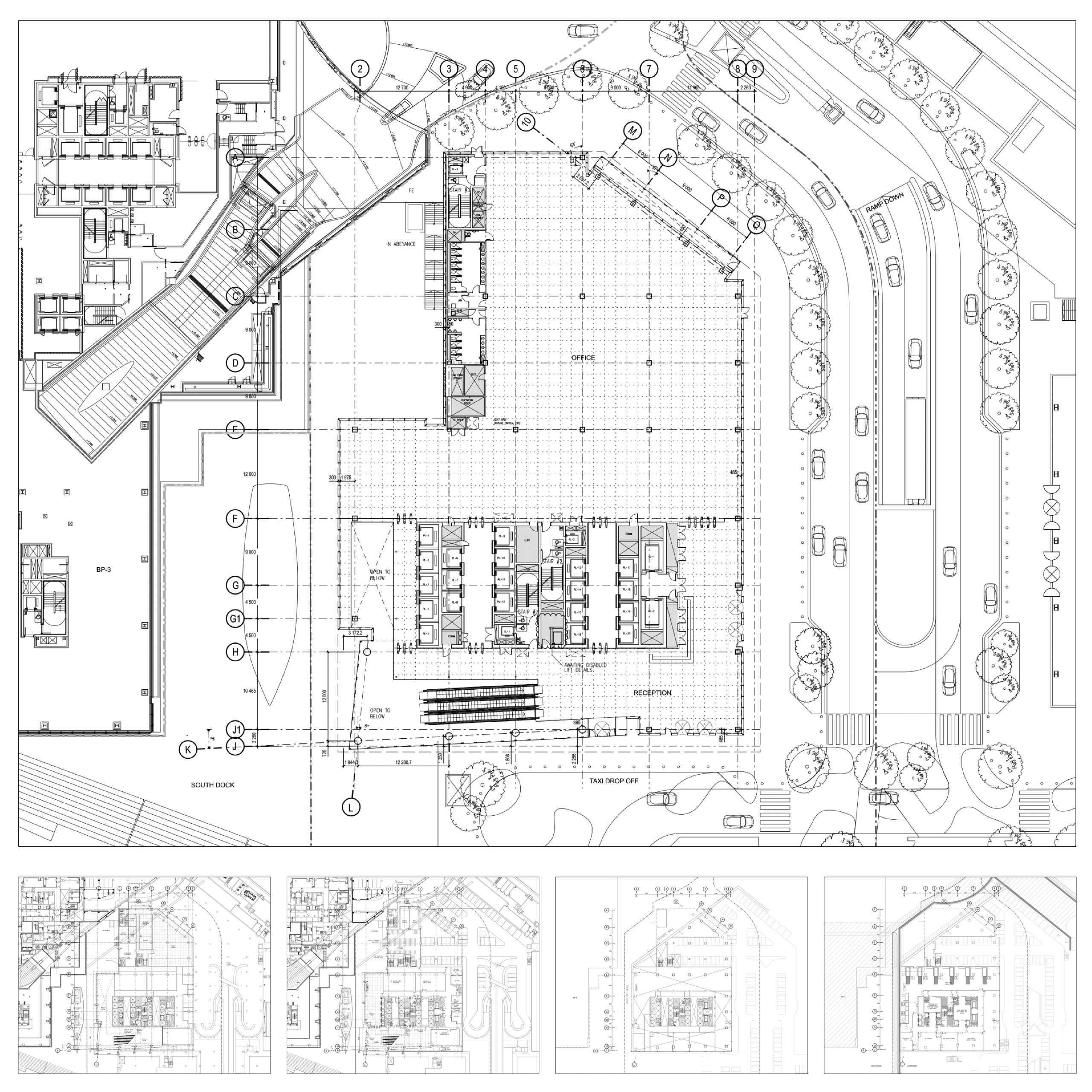
The Wood Wharf Tower forms part of the new business district adjacent to Canary Wharf in London, masterplanned by Richard Rogers Partnership. Designed as a primary gateway to the development, the building combines large trading floors, flexible office space, and multiple plant levels within a total area of approximately 133,000 m². The tower’s stepped profile and integrated green roofs address the site’s riverside context while maintaining efficient floorplates for commercial use.










The project was developed by a dedicated team within the London office of Kohn Pedersen Fox (KPF), working closely with the master planners and consultants to coordinate material systems, façade detailing, and construction documentation for one of the key components of the overall district plan. This project was never built. The master plan was reinterpreted, and a reshaped building plot was developed several years later.